ВП 31

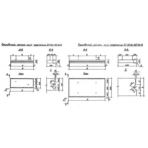
Чертеж изделия:
Характеристики изделия:
ПараметрЗначение
длина3130 мм
ширина1200 мм
высота260 мм
масса2380 кг
нормативный документАльбом РК 2303-86

ВП 31  Верхняя плита (плита перекрытия)  Альбом РК 2303-86.