5БФ 111 балки фундаментные
Характеристики изделия:
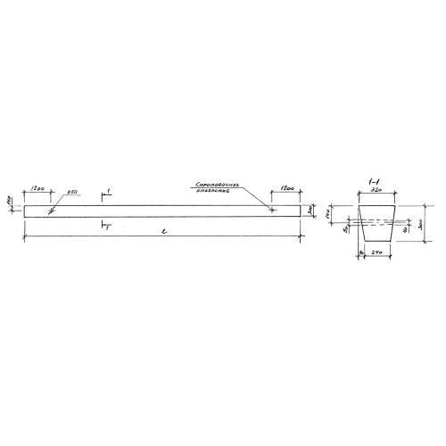
| Параметр | Значение |
|---|---|
| длина | 11050 мм |
| ширина | 320 мм |
| высота | 300 мм |
| масса | 2300 кг |
| нормативный документ | Серия 1.015.1-1.95 |
Цена:
Рассчитать стоимость5БФ 111 Балки фундаментные Серия 1.015.1-1.95.
| Параметр | Значение |
|---|---|
| длина | 11050 мм |
| ширина | 320 мм |
| высота | 300 мм |
| масса | 2300 кг |
| нормативный документ | Серия 1.015.1-1.95 |
5БФ 111 Балки фундаментные Серия 1.015.1-1.95.
