3ПБ 13 перемычки брусковые

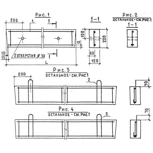
Чертеж изделия:
Характеристики изделия:
ПараметрЗначение
длина1290 мм
ширина120 мм
высота220 мм
масса85 кг
нормативный документСерия 1.038.1-1

3ПБ 13  Перемычки брусковые Серия 1.038.1-1.