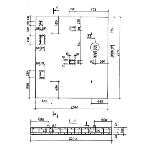
ПЛ 50-20
Характеристики изделия:
| Параметр | Значение |
|---|---|
| длина | 2020 мм |
| ширина | 2270 мм |
| высота | 200 мм |
| вес | 2300 кг |
| серия | 1.089.1-2 |
Цена:
Рассчитать стоимостьПЛ 50-20 Плиты перекрытия над шахтой пассажирского лифта по серии 1.089.1-2.
| Параметр | Значение |
|---|---|
| длина | 2020 мм |
| ширина | 2270 мм |
| высота | 200 мм |
| вес | 2300 кг |
| серия | 1.089.1-2 |
ПЛ 50-20 Плиты перекрытия над шахтой пассажирского лифта по серии 1.089.1-2.
