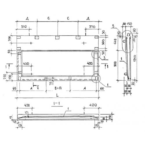
ПБК 24.13

Чертеж изделия:
Характеристики изделия:
ПараметрЗначение
длина2390 мм
ширина1340 мм
высота150 мм
вес950 кг
серия1.137.1 КЛ-1

ПБК 24.13 Плиты балконов консольные по серии 1.137.1 КЛ-1.