БП 15

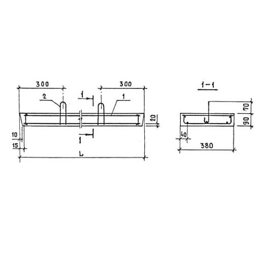
Чертеж изделия:
Характеристики изделия:
ПараметрЗначение
длина1550 мм
ширина380 мм
высота90 мм
вес132 кг
серия1.139-1

БП 15 Плитные перемычки по серии 1.139-1.