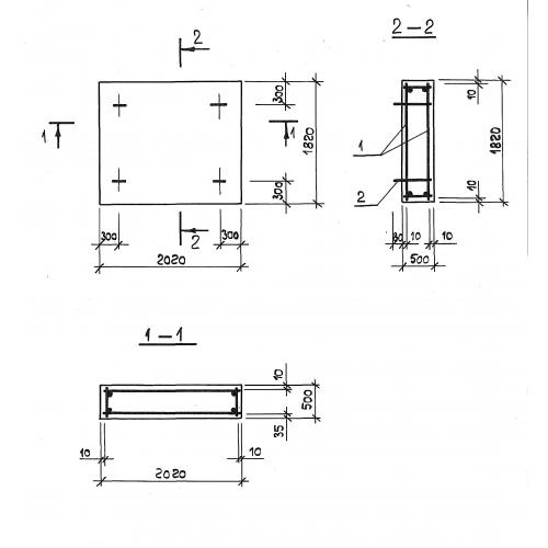
ПФ 18.20
Характеристики изделия:
| Параметр | Значение |
|---|---|
| длина | 1820 мм |
| ширина | 2020 мм |
| высота | 500 мм |
| вес | 4600 кг |
| серия | 1.189.1-8 |
Цена:
Рассчитать стоимостьПФ 18.20 Плиты фундамента для обычных грунтов по серии 1.189.1-8.
| Параметр | Значение |
|---|---|
| длина | 1820 мм |
| ширина | 2020 мм |
| высота | 500 мм |
| вес | 4600 кг |
| серия | 1.189.1-8 |
ПФ 18.20 Плиты фундамента для обычных грунтов по серии 1.189.1-8.
