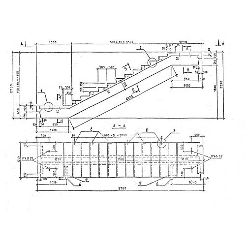
ЛМР 58.12.18
Характеристики изделия:
| Параметр | Значение |
|---|---|
| длина | 5760 мм |
| ширина | 1200 мм |
| высота | 2250 мм |
| масса | 3175 кг |
| нормативный документ | Серия 1.258 КЛ-2 |
Цена:
Рассчитать стоимостьЛМР 58.12.18 Лестничные марш-площадки Серия 1.258 КЛ-2.
| Параметр | Значение |
|---|---|
| длина | 5760 мм |
| ширина | 1200 мм |
| высота | 2250 мм |
| масса | 3175 кг |
| нормативный документ | Серия 1.258 КЛ-2 |
ЛМР 58.12.18 Лестничные марш-площадки Серия 1.258 КЛ-2.
