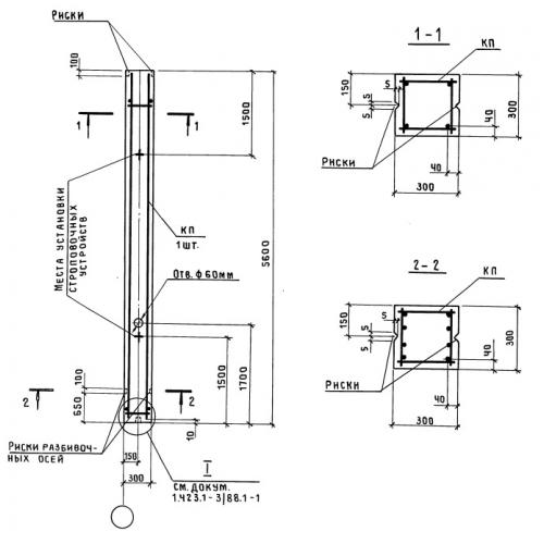
1К 48 колонны
Характеристики изделия:
| Параметр | Значение |
|---|---|
| длина | 5600 мм |
| ширина | 300 мм |
| высота | 300 мм |
| масса | 1300 кг |
| нормативный документ | Серия 1.423.1-3/88 |
Цена:
Рассчитать стоимость1К 48 Колонны Серия 1.423.1-3/88.
| Параметр | Значение |
|---|---|
| длина | 5600 мм |
| ширина | 300 мм |
| высота | 300 мм |
| масса | 1300 кг |
| нормативный документ | Серия 1.423.1-3/88 |
1К 48 Колонны Серия 1.423.1-3/88.
