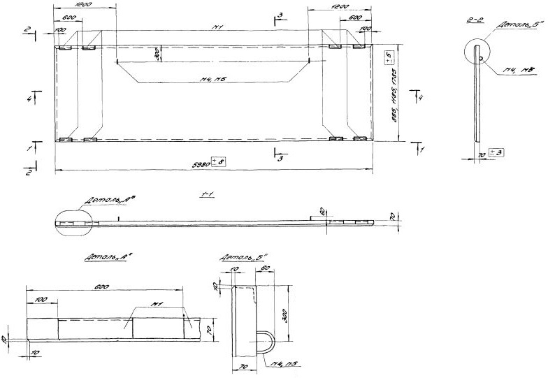
ПСЛН AV-1,2-6-122

Чертеж изделия:
Характеристики изделия:
ПараметрЗначение
Длина5980 мм
Ширина70 мм
Высота1185 мм
Масса960 кг
Нормативный документСерия 1.432-10

Предварительно напряженные панели из легких бетонов, армированные сталью класса A-V, по Серии 1.432-10.

ПСЛН AV-1,2-6-122  Рядовая панель у температурного шва и в углу зданий по продольной стене.