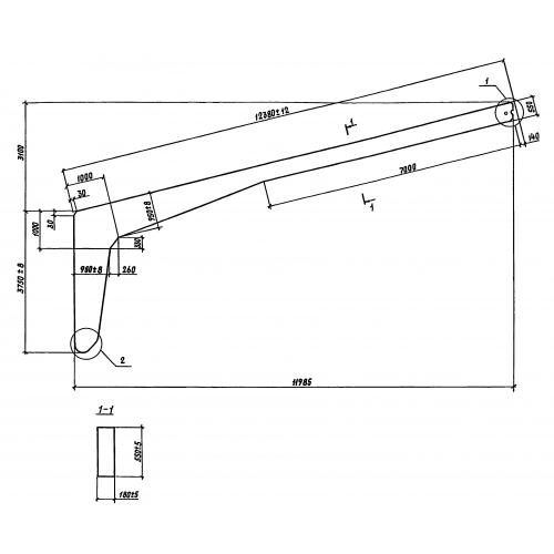
РПС 24

Чертеж изделия:
Характеристики изделия:
ПараметрЗначение
длина12380 мм
ширина180 мм
высота6850 мм
вес4750 кг
серия1.822.1-2/82

РПС 24 Сельскохозяйственные полурамы по серии 1.822.1-2/82.