Тв 6
Характеристики изделия:
| Параметр | Значение |
|---|---|
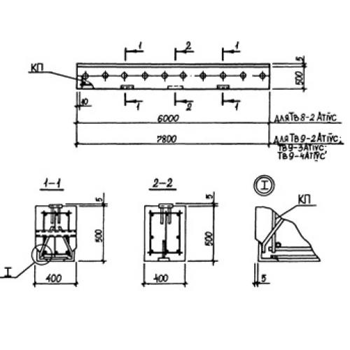
| длина | 7800 мм |
| ширина | 400 мм |
| высота | 500 мм |
| масса | 3900 кг |
| нормативный документ | Серия 3.015-3/92 |
Цена:
Рассчитать стоимостьТв 6 Траверсы Серия 3.015-3/92.
| Параметр | Значение |
|---|---|
| длина | 7800 мм |
| ширина | 400 мм |
| высота | 500 мм |
| масса | 3900 кг |
| нормативный документ | Серия 3.015-3/92 |
Тв 6 Траверсы Серия 3.015-3/92.
