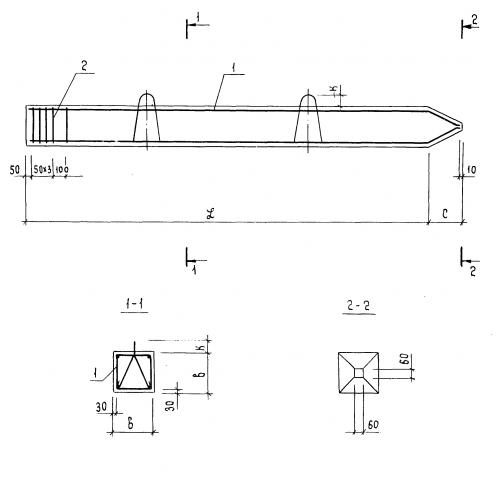
С 6-40
Характеристики изделия:
| Параметр | Значение |
|---|---|
| длина | 6350 мм |
| ширина | 400 мм |
| высота | 400 мм |
| вес | 2450 кг |
| серия | 3.015-5/86 |
Цена:
Рассчитать стоимостьС 6-40 Сваи прямоугольного сечения по серии 3.015-5/86.
| Параметр | Значение |
|---|---|
| длина | 6350 мм |
| ширина | 400 мм |
| высота | 400 мм |
| вес | 2450 кг |
| серия | 3.015-5/86 |
С 6-40 Сваи прямоугольного сечения по серии 3.015-5/86.
