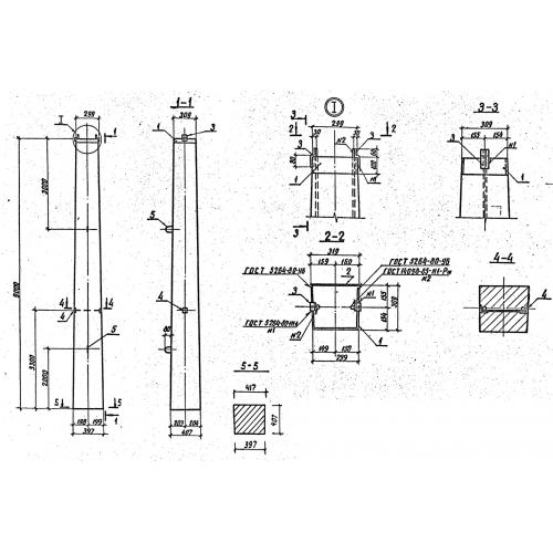
ВС 90-112 Стойки конические прямоугольного сечения
Характеристики изделия:
| Параметр | Значение |
|---|---|
| длина | 9000 мм |
| ширина | 417 мм |
| высота | 407 мм |
| масса | 2880 кг |
| нормативный документ | Серия 3.407.1-157 |
Цена:
Рассчитать стоимостьВС 90-112 Вибропресованные стойки по Серии 3.407.1-157.
