Ш 1
Характеристики изделия:
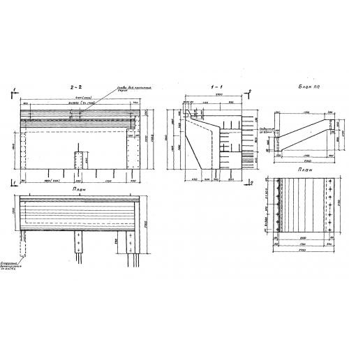
| Параметр | Значение |
|---|---|
| длина | 4700 мм |
| ширина | 2200 мм |
| высота | 2300 мм |
| вес | 13300 кг |
| серия | 3.501-61 |
Цена:
Рассчитать стоимостьШ 1 Шкафные блоки по серии 3.501-61.
| Параметр | Значение |
|---|---|
| длина | 4700 мм |
| ширина | 2200 мм |
| высота | 2300 мм |
| вес | 13300 кг |
| серия | 3.501-61 |
Ш 1 Шкафные блоки по серии 3.501-61.
