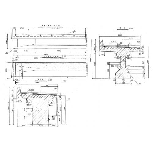
БН 1.187

Чертеж изделия:
Характеристики изделия:
ПараметрЗначение
длина18700 мм
ширина2060 мм
высота2130 кг
вес55900 кг
серия3.501.1-175.93

БН 1.187 Балки ребристые из предварительно напряженного железобетона по серии 3.501.1-175.93.