Л-3

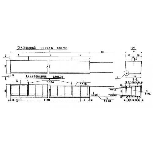
Чертеж изделия:
Характеристики изделия:
ПараметрЗначение
длина5650 мм
ширина630 мм
высота610 мм
вес3630 кг
серия3.503-41

Л-3 Лежни железобетонные по серии 3.503-41.