ФП-2

Чертеж изделия:
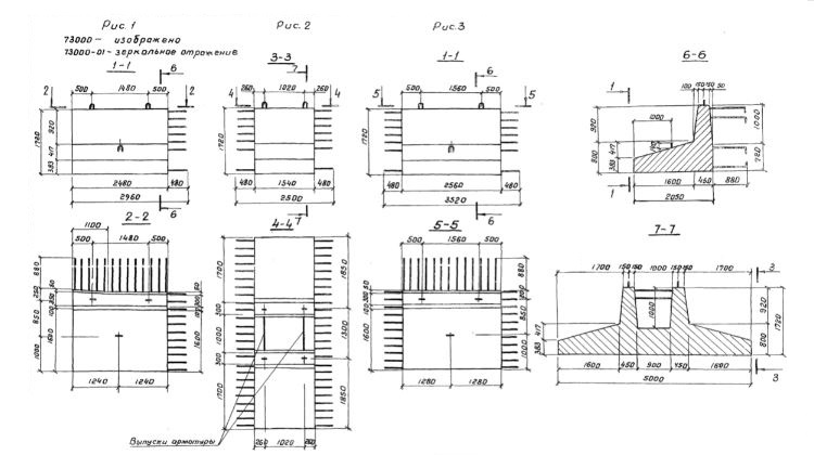
Характеристики изделия:
ПараметрЗначение
длина3520 мм
ширина2930 мм
высота1720 мм
масса10500 кг
нормативный документСерия 3.503-49

ФП-2 Сборные блоки фундамента промежуточные по Серии 3.503-49.