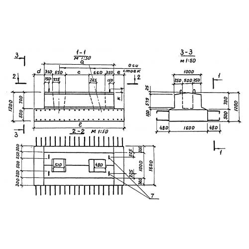
Ф-550
Характеристики изделия:
| Параметр | Значение |
|---|---|
| длина | 5500 мм |
| ширина | 2560 мм |
| высота | 1200 мм |
| вес | 16300 кг |
| серия | 3.503.1-57 |
Цена:
Рассчитать стоимостьФ-550 Блоки фундамента по серии 3.503.1-57.
| Параметр | Значение |
|---|---|
| длина | 5500 мм |
| ширина | 2560 мм |
| высота | 1200 мм |
| вес | 16300 кг |
| серия | 3.503.1-57 |
Ф-550 Блоки фундамента по серии 3.503.1-57.
