П 6.3-1

Чертеж изделия:
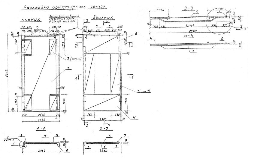
Характеристики изделия:
ПараметрЗначение
Длина6240 мм
Ширина2980 мм
Высота350 мм
Масса5400 кг
Нормативный документСерия 3.702.1-4

П 6.3-1   Плита надсилосная по Серии 3.702.1-4.