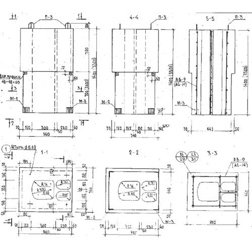
ВШ-5 вентшахты

Чертеж изделия:
Характеристики изделия:
ПараметрЗначение
длина860 мм
ширина740 мм
высота3300 мм
масса1538 кг
нормативный документСерия Б1.134.1-7

ВШ-5 Армированные вентиляционные шахты из бетона по Серии Б1.134.1-7.