ПСЛ 20

Чертеж изделия:
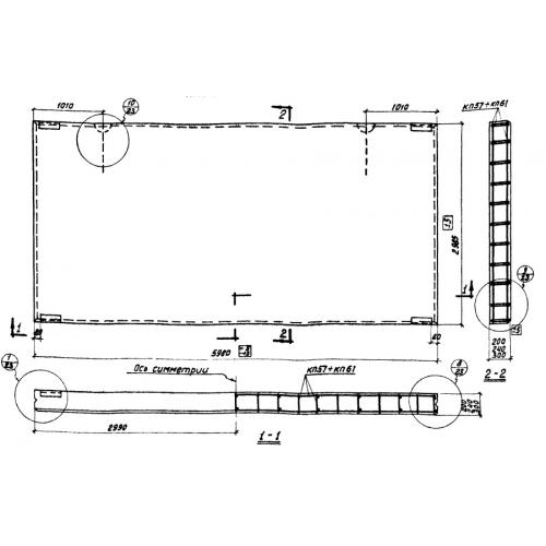
Характеристики изделия:
ПараметрЗначение
длина5980 мм
ширина200 мм
высота2985 мм
вес4900 кг
серияСТ 02-33

ПСЛ 20 Панели стеновые из легкого бетона по серии СТ 02-33.