К 3

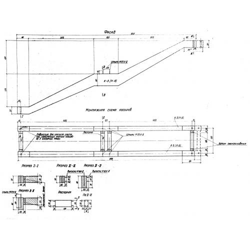
Чертеж изделия:
Характеристики изделия:
ПараметрЗначение
длина9490 мм
ширина260 мм
высота3080 мм
масса3000 кг
нормативный документТП 501-166

К 3  Косоуры по Типовому проекту ТП 501-166.